Проектно-Строительная компания

Северо-Западные технологии

+7(911) 949-80-13

@zelenostrovszt 

Пред.
След.
 

Проект благоустройства в Ганино

Портфолио- Благоустройство территории

ganino

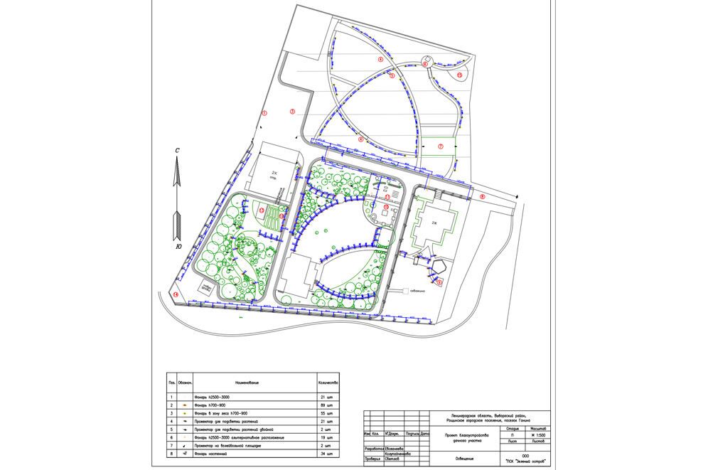
Разработанный компанией «Зелёный остров» проект, предполагающий благоустройство территории домовладения в посёлке Ганино, по своей концепции нацелен на создание образа старинного родового гнезда, в котором уютно и комфортно проживало несколько поколений. Запланировано провести масштабные отделочные работы основного здания, перепланировку территории, постройку беседок и вольеров, оборудовать спуск к водоёму. Разработан  план современного уличного и внутридомового освещения, размещения посадок и расположения дорожек. Запланировано проводя озеленение территории сделать несколько типов дорожек: часть вымостить каменной и тротуарной плиткой, а часть засеять газонной травой износостойких сортов. Подобное дополнительное озеленение территории выглядит очень эффектно, особенно на обширных участках. Большое количество уличных светильников придаст такому парку ни с чем несравнимое очарование. Проект предусматривает большой объём общестроительных и земельных работ, масштабную посадку деревьев,  многолетних цветов и кустарников, монтаж инженерных коммуникаций в доме и по территории.

 

 

ganino_2 dendroplan_ganino dendroplan_na_setke_ganino razreziy_ganino osveschenie_2_ganino razbivochnyyiy_ganino osveschenie_ganino genplan_ganino moschenie_ganino